Additional Dwelling Unit (ADU) Initiative

What is an ADU?

An Additional Dwelling Unit (ADU), sometimes called a granny flat, in-law suite, accessory unit, or other names, is a self-contained residential unit that is located on the same property as a primary residence. ADUs can be:

  • within the main dwelling, like a basement apartment
  • attached to the main building, like a side or rear extension
  • separate (detached) from the main home, such as a garage flat or a separate coach house

Why Build an ADU?

ADUs provide multiple benefits:

  • Affordable, flexible housing options for residents
  • Additional rental income for property owners
  • Efficient use of land and existing infrastructure
  • Safe, independent living options for family members

Who might be likely to live in an ADU?

ADUs provide flexible living options for many people, including but not limited to:

  • Extended family, like grandparents, elderly parents, adult children, or relatives needing temporary housing
  • Renters or tenants, like students, young professionals, or small households seeking affordable housing
  • Caregivers or live-in assistants supporting family members

ADUs offer a sustainable, affordable housing option while allowing homeowners to generate rental income and make better use of their property.

How the City Can Help

The City of Sault Ste. Marie is supporting ADUs to help increase housing options, streamline approvals, and reduce costs. This initiative includes:

What type of ADUs are allowed on residential lots in Sault Ste. Marie?

The City’s Zoning By-law does not specifically define ADUs. Relevant definitions include:

Residential Structure (1.74, 2024-48): Any building designed, used, or intended for residential occupancy, consisting of one or more dwelling units.

Dwelling Unit (2.11): Means a single, or series of rooms of complementary use for human habitation, which is located in a building in which food preparation, eating, living, sleeping and sanitary facilities are provided primarily for the exclusive use of the occupants thereof. Such rooms shall have a private entrance directly from outside the building or from a common hallway inside the building, in which all occupants have access to all of the habitable areas and facilities of the unit. This unit shall be occupied and used, or be capable of being occupied and used as a single and independent housekeeping establishment.

What this means:

  • Residential structures are permitted in the following residential zones: R1 (up to two per lot), R2, R3, R4, and R5 and some other zone types. If you are not sure of your property’s zoning, check https://www.soomaps.com/.
  • There is no hard cap on the number of dwelling units permitted on a residential property; however, developments must comply with Zoning By-law building regulations for the number of stories, lot setbacks, parking, etc. These regulations can be found in the City’s Zoning By-law.
  • Depending on the dimensions and the placement of existing buildings on your lot, some types of ADUs may work better than others.

If you have any questions or need help with determining if your lot is eligible for an ADU, call the Planning Department at 705-759-5368 or send an email to planning@cityssm.on.ca.

The City of Sault Ste. Marie is pleased to provide information on a number of preliminarily designs for detached ADUs. This gallery features plans that have already been reviewed and approved by the City’s Building Department.

Please note that preliminary approval does not guarantee compliance with zoning by-laws, or Ontario building code as this is property-specific. If you are considering one of these ADUs, you are encouraged to contact either the Planning Department or the Building Department early in your planning process.)  

Select any of the designs to view details and contact the designer to use the plan.

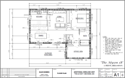
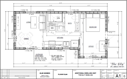
“The Elly” - A one-bedroom / one bath unit - 448 sq ft.

“The Elly” boasts an open-concept kitchen, dining, and living space with patio doors that walk out onto an outdoor patio area, a hall closet for a stackable washer/dryer and storage, and a three-piece bath with a large shower. The spacious one-bedroom even has room for an office desk and space to add a large closet. The bedroom has sliding doors that also lead to an outdoor patio space and a potential covered terrace.

 Costs

Approximately: $ 129,750

Timeline 45-90 days from the start of production to project completion.

Price includes:

  • Foundation – Techno Metal Posts (engineered helical piles)
  • Floor, exterior, and roof panels
  • Floor R38, wall R33, roof R50 Dense Pack Rockwool insulation
  • Exterior Walls are double 2×4 construction (pre-fabricated)
  • Floor & Roof Panels are BCI High Performance pre-engineered I-beam construction (Floor 9 1/2” depth, Roof 11 7/8” depth), 5/8” T&G plywood
    • Metal Exterior siding and roof covering
    • Seamless Eavestrough System
    • Corden steel accents
    • Doors and windows
    • Kitchen with appliances
    • 3-piece bath with fixtures
    • Plumbing and electrical
    • Interior walls, drywall, and paint.
    • Hybrid resilient flooring
    • Light fixtures and receptacles

Not included in the price:

  • Site feasibility study/site plans: $1,000-2,000
  • Hook-ups to existing services: $1,500-5,000
  • Wood deck / patio: $1,500-3,000
  • All stairs required at entry locations: $ 500-850
    • Optional Barrier Free PT Wood ramp(s) to all entry locations
  • Cost to license: Contact information below for a price.

Use this Plan

To order this unit or learn more about it, please contact Great Lakes Modular Homes.

Email: dereknott1977@gmail.com

Phone: 705-417-7075

“The Alyson 1B” features a larger footprint, allowing for a separate home office or den space. Central bathroom, and more storage and laundry space. The bedroom has a built-in closet, and the larger, open-concept standard room is comparable to any custom home. Both the Living/Dining and Office spaces feature large sliding patio doors that lead to the outdoor patio area.

Costs

Approximately: $ 159,750

Timeline 45-90 days from the start of production to project completion.

Price includes:

  • Foundation – Techno Metal Posts (engineered helical piles)
  • Floor, exterior, and roof panels
  • Floor R38, wall R33, roof R50 Dense Pack Rockwool insulation
  • Exterior Walls are double 2×4 construction (pre-fabricated)
  • Floor & Roof Panels are BCI High Performance pre-engineered I-beam construction (Floor 11 7/8” depth, Roof 11 7/8” depth), 5/8” T&G plywood
  • Metal Exterior siding and roof covering
    • Seamless Eavestrough System
    • Corden steel accents
    • Doors and windows
    • Kitchen with appliances
    • 3-piece bath with fixtures
    • Plumbing and electrical
    • Interior walls, drywall, and paint.
    • Hybrid resilient flooring
    • Light fixtures and receptacles

Not included in the price:

  • Site feasibility study/site plans: $1,000-2,000
  • Hook-ups to existing services: $1,500-5,000
  • Wood deck / patio: $1,500-3,000
  • All stairs required at entry locations: $ 500-850
    • Optional Barrier Free PT Wood ramp(s) to all entry locations
  • Cost to license: Contact information below for a price.

Use this Plan

To order this unit or learn more about it, please contact Great Lakes Modular Homes.

Email: dereknott1977@gmail.com

Phone: 705-417-7075

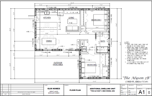
“The Alyson 2B” is a larger 2-bedroom unit, complete with the same spacious kitchen, living, and dining area as the 1B, along with a second large bedroom with a built-in closet, and even room for a study desk. The large standard room has patio doors onto the patio, and there is an option to add a door to the second bedroom for access to the outside space.

 Costs

Approximately: $ 179,750

Timeline 45-90 days from the start of production to project completion.

Price includes:

  • Foundation – Techno Metal Posts (engineered helical piles)
  • Floor, exterior, and roof panels
  • Floor R38, wall R33, roof R50 Dense Pack Rockwool insulation
  • Exterior Walls are double 2×4 construction (pre-fabricated)
  • Floor & Roof Panels are BCI High Performance pre-engineered I-beam construction (Floor 9 1/2” depth, Roof 11 7/8” depth), 5/8” T&G plywood
    • Metal Exterior siding and roof covering
    • Seamless Eavestrough System
    • Corden steel accents
    • Doors and windows
    • Kitchen with appliances
    • 3-piece bath with fixtures
    • Plumbing and electrical
    • Interior walls, drywall, and paint.
    • Hybrid resilient flooring
    • Light fixtures and receptacles

Not included in the price:

  • Site feasibility study/site plans: $1,000-2,000
  • Hook-ups to existing services: $1,500-5,000
  • Wood deck / patio: $1,500-3,000
  • All stairs required at entry locations: $ 500-850
    • Optional Barrier Free PT Wood ramp(s) to all entry locations
  • Cost to license: Contact information below for a price.

Use this Plan

To order this unit or learn more about it, please contact Great Lakes Modular Homes.

Email: dereknott1977@gmail.com

Phone: 705-417-7075

ADU Guidelines and Steps

Adding an ADU to your property is easier when you understand the process. The City of Sault Ste. Marie provides guidelines and step-by-step instructions to help homeowners, builders, and designers navigate permits, zoning, and construction requirements.

Step 1: Confirm Zoning and Property Eligibility

Start by verifying that your property and your proposed ADU location meet the City’s Zoning By-law requirements. You can check the zoning of your property using https://www.soomaps.com/. If you have any questions or need help, call the Planning Department at 705-759-5368 or send an email to planning@cityssm.on.ca.

Once you know what your property is zoned, check the Building Regulations for that zone in the City’s Zoning By-law. Verify:

  • Minimum lot size and setbacks
  • Maximum number of stories
  • Parking requirements
  • Servicing (water, sewer, utilities)
  • Any easements or rights-of-way on your property

Note: Properties that are not fully serviced may have additional requirements or approvals. Confirm servicing early to avoid redesign later.

Decide which type of ADU fits best on your property:

  • Internal (within the primary dwelling): basement suite, main-floor suite, or upper storey/attic suite
  • Attached (physically connected addition): side or rear addition with a self-contained unit
  • Detached (separate building): garden suite, coach house, or a unit over an attached garage

Consider the following when conceptualizing your ADU:

  • Functional floor plan layout including private entrance, kitchen, bathroom, sleeping area
  • Building Code and fire safety
  • Accessibility features (ramps, wider doorways)
  • Parking and on-site access
  • Energy efficiency and green design features

Once you know if your property can accommodate one or more ADUs, it’s time to estimate the building costs. For basement or garage conversions and conventionally constructed detached ADUs, it’s helpful to gather estimates for the cost per square foot. For pre-fabricated or modular detached units, it’s best to contact the manufacturer directly for pricing. A qualified designer can also provide approximate figures for the overall construction, utility connections, and foundation design.

What to consider for pricing:

Construction

  • Internal/attached (basement, addition) or detached (conventional build)
  • Prefabricated/modular units: obtain pricing directly from the manufacturer

Site and servicing

  • Water/sanitary connections or upgrades, electrical/gas service, sump/backflow, grading/drainage, driveways, walkways, landscaping, fencing

Professional services

  • Designer/architect, engineer (as needed for structure, drainage, or foundations), survey, geotechnical (if required)

Approvals and permits

  • Building Permit, other permits (entrance/driveway, utility locates), and any applicable municipal fees

Carrying and contingencies

  • Construction contingency (10–20%), HST, insurance, financing/interest during construction, etc,

Tips

  • Confirm with Planning/Building which municipal fees apply.
  • Avoid underestimating servicing: older homes may require panel upgrades, water/sewer upsizing, or backflow prevention.
  • Revisit the estimate after preliminary drawings; update it again once permit drawings and specs are finalized.

The City offers a selection of preliminary plans for detached ADUs to simplify design and approval. The benefits of using pre-approved designs are shorter review timelines, reduced design costs, and standardized, code-compliant details. 

Remember: Pre-approval does not guarantee zoning compliance for every property and covers the building design only. You must still confirm zoning compliance, site conditions, and servicing.

A Building Permit is still required. Site‑specific drawings (site plan, grading, servicing) and any required studies must be submitted.

Any modifications to a pre‑approved plan may require full design review and could remove the time‑savings.

The City of Sault Ste. Marie offers financial incentives (grants) for the development of new housing units within the urban area of the City through the Housing Community Improvement Plan (CIP). Specifically, check if your project is eligible for a Per-Door Grants (for 1–4 new units on a property) and/or the Municipal Fees Rebate Program.

You are encouraged to apply for these grants prior to getting a building permit. For more information on the Housing CIP, call the City’s Housing Coordinator at 705-541-5169 or email housingCIP@cityssm.on.ca.

Note: Make sure to check for other provincial or federal housing programs that may be available to support the construction of an ADU.

Submit a complete building permit application package. Refer to the City’s checklist for full package requirements: https://saultstemarie.ca/work/building-permits/applications-forms-fees/. These include, but are not limited to:

  • Site plan showing the ADU location, setbacks, etc.
  • Floor plans and elevations
  • Structural details
  • Plumbing, electrical, and mechanical details
  • Compliance with the Ontario Building Code
  • Building permit and other applicable fees

For more information on the requirements of a complete building permit application, contact the Building Division at 705-541-7306 or email buildingpermits@cityssm.on.ca.

Note: Your project may require a building permit from the Conservation Authority as well, depending on the location of your property.

After submitting your permit application package:

  • City staff will review your plans for compliance. You may receive comments to address before a permit is issued.
  • Required inspections will occur during construction (foundation, framing, electrical, plumbing, final inspection)
  • Your ADU can be occupied only after receiving an occupancy permit, once all inspections have been completed/passed

Resources and Assistance

  • ADU Design Gallery – view preliminary plans and ideas
  • ADU Guide – detailed instructions and FAQs
  • Email housing@cityssm.on.ca for personalized guidance

    Tip: Planning ahead and consulting City staff early can save time, reduce costs, and help ensure your ADU meets all requirements.